Quadrilocale in vendita

Taranto, Via Generale Giuseppe Messina - Trecarrare
€ 75.000
Prezzo aggiornato
4 locali 4 locali
114 Mq 114 Mq
1 bagno 1 bagno

Quadrilocale in vendita

Taranto, Via Generale Giuseppe Messina - Trecarrare

Descrizione annuncio

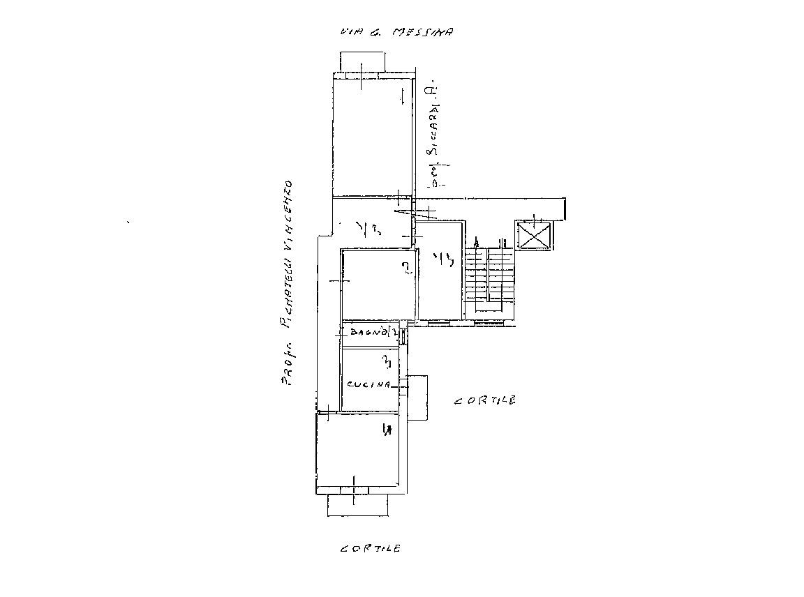
Via Generale Giuseppe Messina: Nella zona di Trecarrare è disponibile un appartamento in vendita che offre una soluzione abitativa pratica e funzionale, situato in stabile dotato di ascensore. Questa disposizione interna permette di organizzare gli spazi in modo versatile, adattandosi a diverse esigenze abitative. La posizione strategica consente di godere di una buona luminosità e di una vista panoramica sulla zona circostante. L'appartamento è composta da ingresso-disimpegno, soggiorno luminoso con porta finestra ed esposizione su Via Generale Giuseppe Messina, cucina abitabile con veranda ed esposizione interna, camera da letto matrimoniale con esposizione in veranda interna, camera con balcone romano, cameretta con finestra ed esposizione interna, bagno con vasca e finestra con esposizione interna. Inoltre è presente riscaldamneto termo-autonomo, doppi infissi.

Mostra tutto

Nelle vicinanze

Trasporto pubblico Trasporto pubblico
Trasporto pubblico
830 m
Amat Linea 18
Amat Linea 18
2,5 Km
Ricariche auto elettriche Ricariche auto elettriche
Lidl Taranto Centro
740 m
CONAD Picardi
1,4 Km
Scuole Scuole
Scuola Primaria "Rosario Livatino"
760 m
Istituto Comprensivo "Renato Moro"
760 m
Scuola Secondaria di primo grado "Leonida da Taranto"
1,1 Km
Scuola Secondaria di Primo Grado Colombo
1,1 Km
Liceo Scientifico Galileo Ferraris
1,2 Km
Farmacia Farmacia
Quaranta
110 m
Dr. P. Russo
500 m
Castellaneta
780 m
Brescia
880 m
Farmacia Graniglia - via Oberdan 100 - 74123 Taranto
970 m
Ospedali Ospedali
Santissima Annunziata
1,1 Km
Servizi d'igiene e sanità pubblica
1,3 Km
Ospedale Militare Marittimo
1,3 Km
Azienda Sanitaria Locale TA/1
1,6 Km
Casa di cura "Villa Verde"
2,5 Km
Supermercati Supermercati
Sigma
180 m
Supermercati
720 m
Lidl
740 m
Happy Shopping
1,2 Km
Alter
1,2 Km
Negozi Negozi
Modesto - Negozio ambulante indumenti usati
1,1 Km
Laterza
1,2 Km
Negozi
1,2 Km
Panetteria San Francesco
1,3 Km
OVS
1,3 Km
Bar Bar
Bar Pandora
620 m
Gelateria Trani
870 m
Palma D'oro
1,4 Km
BirrotecaPuglia
1,4 Km
Pinamar caffe
1,8 Km
Ristoranti Ristoranti
Dreher
120 m
Company/dreher pizzeria d'asporto
990 m
Pizzeria Quick Time
1,2 Km
Villa Mare 2
1,2 Km
Osteria due mari
1,2 Km
Mostra tutto

Caratteristiche

Rif.:
61092807
Piano:
6 di 8 con ascensore (Piano alto)
Balconi:
1
Camere da letto:
1
Arredamento:
Assente
Condizionamento:
Assente
Mostra tutto
Prezzo Prezzo
€ 75.000
Rata mutuo Rata mutuo
€ 333 / mese
Spese annue Spese annue
€ 360
Proponi il tuo prezzoProponi il tuo prezzo

Classe Energetica

F
F
F
F
F
F
F
F
F
EP globale non rinnovabile:
169.86 kW h/m² anno
EP globale rinnovabile:
169.86 kW h/m² anno
EP invernale del fabbricato:
EP estiva del fabbricato:
Anno di costruzione:
1955
Riscaldamento:
Autonomo
Tipo impianto:
A radiatori
Tipo alimentazione:
Metano

Prezzo ridotto di €1 (7%%)

Ti interessa visionare l'immobile?

Fissa un appuntamento  Fissa un appuntamento

Richiedi informazioni

* Questi campi sono obbligatori

Calcola il tuo mutuo

Semplice e senza impegno
Anticipo

( % )
Mutuo

( % )

pochi semplici passi

inserisci i tuoi dati
Questionario completato
Grazie per aver richiesto un appuntamento senza impegno con un nostro Consulente del Credito e Assicurativo.

Hai inserito correttamente tutti i dati necessari e a breve riceverai una e-mail con un link da convalidare per inviare i tuoi dati.
Affiliato
Re Mida Srl
Via Cesare Battisti, 144 74100 Taranto (TA)
Via Cesare Battisti, 144 74100 Taranto (TA)
Zona: Taranto - Trecarrare-Battisti
Mostra su mappa
Orari: dal Lunerdì al Venerdi 08.30/13.00 - 16.00/20:30; Sabato 08.30/13.00 - Sabato pomeriggio e domenica su appunatamento
Affiliato
Re Mida Srl
Via Cesare Battisti, 144 74100 Taranto (TA)

2025 Tecnocasa Franchising S.p.A. - P. IVA 08365160152 - Via Monte Bianco 60/A 20089 Rozzano (MI). Ogni agenzia ha un proprio titolare ed è autonoma. Privacy policy | Policy utilizzo | Cookie policy